Prieuré Housing

Location: Geneva, GE
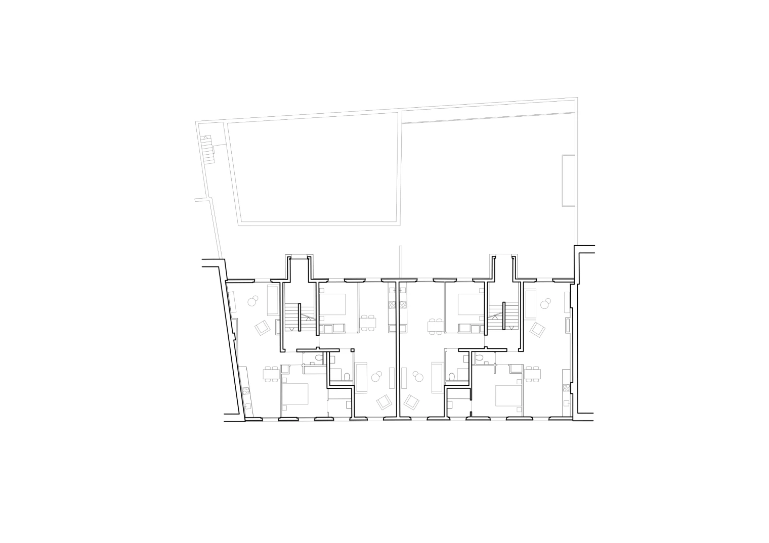
Programme: elevation, 12 apartments
Clients: private
Dates: 2018 - 2024
Status: built
Programme: elevation, 12 apartments
Clients: private
Dates: 2018 - 2024
Status: built
Elevation project in the centre of Geneva, Prieuré Housing aligns with the front roofs of neighbouring buildings, which helps clearly define the streets roofline. On the fronts, old and new bind seamlessly thanks to a coating of the whole. New windows follow the rhythm and alignment of existing openings with contemporary frames. Similarly, the last storey’s long balcony echoes the crowning of the adjacent 19th-century building with current handling and materiality—an abstraction that prolongs the existent.














Credits