Mat Housing

Programme : 2 immeubles, 78 logements et activités
Clients : privé
Dates : 2017 - 2024
Statut : réalisé, lauréat d'un concours sur invitation en 2017
Mat Housing est un ensemble de deux immeubles développés à Bernex, commune choisie par le canton de Genève comme nouveau pôle urbain pour sa politique de densification. Quartier à la confluence de plusieurs réseaux de mobilité, il se place à la lisière entre ville et campagne et invite à un nouveau vivre ensemble.
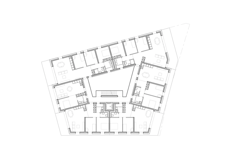
Le projet consiste en un bloc compact et bi-orienté et une barre fine et élancée, dont les typologies se répondent pour dessiner une nouvelle place publique, dite des Marronniers. En forme d’îlot, le premier bâtiment possède une cour centrale ouverte et des coursives intérieures distribuant l’ensemble des logements et permettant une ventilation naturelle. A contre pied, le deuxième bloc est muni d’une forme longitudinale et d’appartements traversants et s’inscrit dans un dialogue avec la ville.
Tout en étant organisés avec grande rationalité, les deux immeubles témoignent des valeurs de proximité propres au contexte rural. Leurs façades en bardage foncé rappellent les granges d’antan. Elles sont pliées et articulées afin d’offrir des vues sur l’environnement naturel alentour. Chaque logement possède de larges fenêtres s’étirant sur toute la hauteur et inscrivant les terrasses comme espace à vivre intrinsèque à la vie du foyer. Les attiques, eux, mettent à disposition des espaces intérieurs et extérieurs pour une vie commune à inventer collectivement.


Situé dans le nouveau quartier de Saint Mathieu, ces deux bâtiments réfléchissent à l'évolution du territoire.





Comment faire dialoguer la campagne et la ville pour initier un nouveau vivre ensemble ?








Entreprise totale : Pillet SA
Mandataires : MBC Ingéo SA, Hirt Ingénieurs SA, BTS Sàrl, PSA Perrin, Spaeth & Associés SA, Dinges Consulting, Oxalis