Siège Raiffeisen

Programme : aménagement intérieur de bureaux et espaces clients
Clients : Raiffeisen
Dates : 2021-2024
Statut : réalisé, lauréat du concours sur invitation en 2021
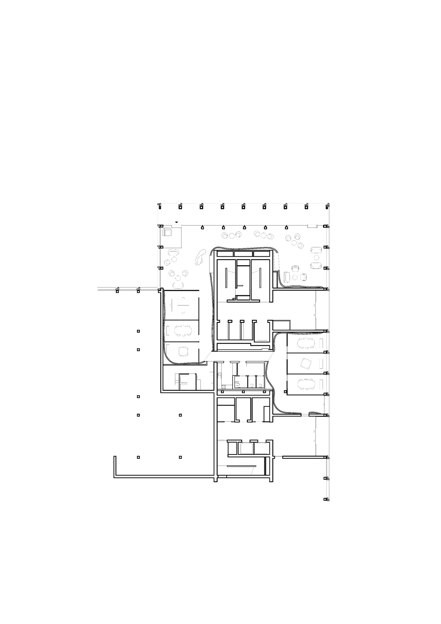
Situé à Lancy Pont-Rouge, au coeur d’un morceau de ville trépidant et métropolitain, le projet de la nouvelle agence et du centre administratif de la Banque Raiffeisen Genève Rive Gauche met l’accent sur la terre crue, un matériau convivial et distinctif qui matérialise, par l’architecture, les valeurs du maître d’ouvrage à savoir humaine, conviviales, durables et locales.
Lauréat du concours sur invitation organisé en 2021 par la Banque Raiffeisen, ce projet fut d’abord une idée folle : construire un mur en terre à géométrie variée. Puis, à force d’abnégation et d’inventivité, il est devenu une réalité palpable. Cette création collective qui mêle technique ancestrale et technologie contemporaine, fait partie intégrante du processus de réflexion du bureau : l’innovation.
Visible depuis l’extérieur, par sa géométrie douce et remarquable il accompagne le visiteur dans cet univers chaleureux. Ses formes aux courbes arrondies, concaves et convexes, contribuent à relier de manière organique les différents espaces. Sa texture, composée de couches horizontales striées, évoque le sillon des champs agricoles. Il fait le lien entre les différents éléments programmatiques qui composent l’endroit : l’accueil, cinq salles de conférences, 73 postes collaborateurs, cinq salons privés ainsi qu’une zone de convivialité, véritable « poumon vert » du projet.
Le mur en terre locale est le fruit d’une recherche approfondie qui dépasse la simple notion de durabilité. Sa mise en oeuvre manuelle fût possible grâce à l’invention de nouveaux outils et procédés imaginés en collaboration avec un artisan local - formC. Il représente une prouesse tant technique qu’esthétique. Ce projet incarne l’engagement commun - du Maître d’Ouvrage à l’artisan - en faveur de la préservation de l’environnement et de la promotion de méthodes de construction durables. Beau et bien ne font plus qu’un.




Le mur en terre est la colonne vertébrale du projet. Par sa matérialité et sa colorimétrie, il crée une transition contrastée avec un environnement urbain minéral plus générique.













Photographe : © Federal Studio
Direction des travaux : FdMP réalisation
Artisan maçon : FormC
Mandataires : Thomas Jundt Ingénieurs Civils SA, Weinmann Energies SA, Architecture et Acoustique SA, Betelec ingénieurs-conseils en électricité SA, Zanetti Ingénieurs-Conseils SA
Presse : Immobilier.ch (04.12.2023)