Fondation Plaza
« Nous avons imaginé ce meuble des archives comme un cœur battant : un objet à la fois fonctionnel et patrimonial, qui conserve la mémoire du Plaza tout en structurant la vie quotidienne de la Fondation. »
Programme : Aménagement intérieur de bureaux
Clients : Fondation Plaza
Dates : 2020 - 2024
Statut : en cours
Situé en plein centre-ville, à proximité de la gare, le Mont Blanc Centre est un complexe iconique conçu par l’architecte genevois Marc-Joseph Saugey dans les années 50, comprenant le célèbre Plaza. Sa position stratégique au cœur de Genève en fait un véritable repère dans le paysage urbain genevois. De plus, en tant que bâtiment historique classé au patrimoine depuis 2019, il revêt une importance capitale dans la préservation du riche patrimoine de Genève. C’est ici que la Fondation Plaza a fait le choix de s’implanter.
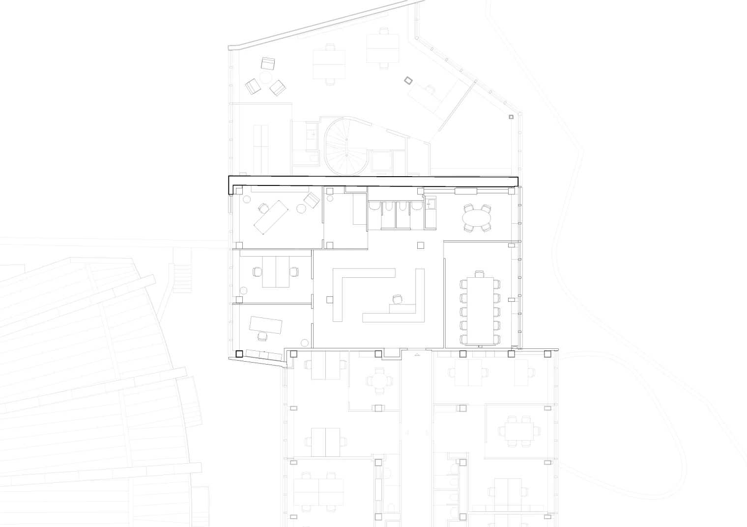
Au cœur des bureaux de la Fondation Plaza, un meuble-archive devient la pièce centrale du projet : un écrin modulaire en multiplis de bouleau teinté vert qui rassemble et met en valeur l’ensemble des archives du Cinéma Plaza. Pensé à la fois comme un espace de conservation et comme outil de travail, il intègre des tirettes de consultations ainsi que les fonctions de réception, vestiaire et impression, structurant l’organisation des bureaux qui s’articulent autour de lui. Un soin particulier est apporté au bureau de direction, conçu comme un bureau témoin révélant les matériaux et teintes d’origine définis par Marc-joseph Saugey, grâce à un minutieux travail de recherche et de restauration.
Programme : Aménagement intérieur de bureaux
Clients : Fondation Plaza
Dates : 2020 - 2024
Statut : en cours
Crédit photos : Federal Studio, FdMP