Manufacture Audemars Piguet

Programme: renovation and extension of an industrial building
Clients: Manufacture d'Horlogerie Audemars Piguet SA
Dates: 2021 - 2025
Status: in progress
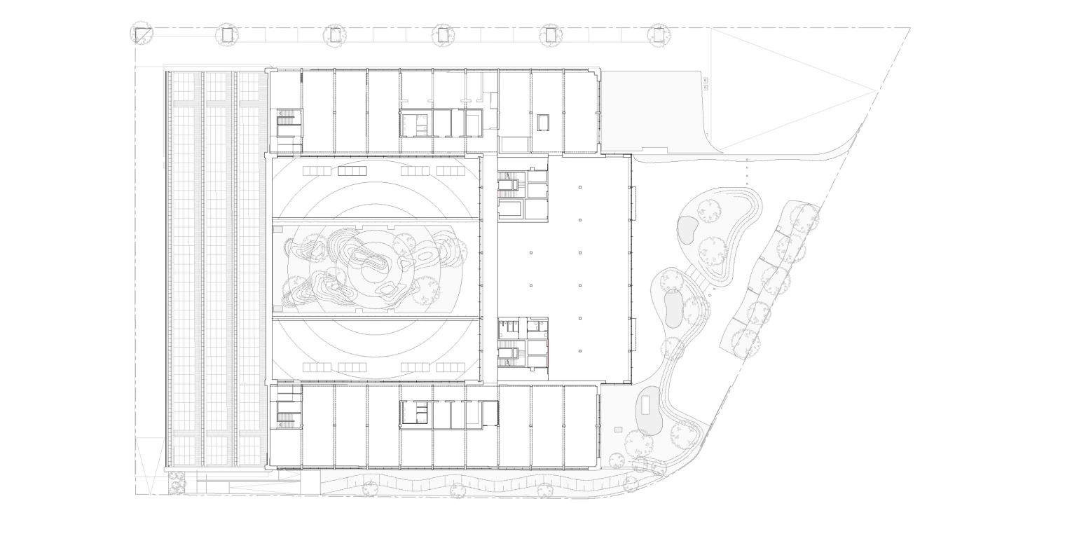
The new Audemars Piguet manufacture is located in Meyrin-Satigny on the site of the former Uhlmann-Eyraud pharmaceutical company industrial building, built between 1963 and 1965. This U-shaped building, recognized for its historical value and acquired by Audemars Piguet in 2023, has been renovated to accommodate the watchmaker's activities. The project focuses on optimizing the existing space and also includes the construction of a new central building with 3 production floors, as well as the construction of two lateral extensions on the upper ground floor. The new manufacture is intended to house case and bracelet production, as well as the New Technologies Center.
The singularity of the original building has been preserved, as has its U-shaped plan organized around a planted inner courtyard, a veritable green lung that creates connections between the various spaces. The original building's rendered facades, metal joinery and counter-cores form a harmonious contrast with the new building's transparent volume of dynamic glass.
Designed to take maximum advantage of natural light, but also to encourage exchanges between employees, the new factory enables Audemars Piguet to offer its teams a pleasant working environment and ensure their well-being and comfort. All production areas are fully glazed and organized around the planted courtyard, with the new building's plaza as an extension. Employees have access to the courtyard via the piazza, and can also enjoy two large terraces on the second floor. These outdoor spaces are in addition to the many indoor meeting places designed to encourage conviviality and communication between employees from different departments.

The existing building envelope is being renovated, insulated or replaced to achieve the Minergie® Rénovation label, while retaining the geometries and modenatures of the original industrial character.

Where tradition and heritage meet industrial character and innovative production requirements.



Construction management : acau architecture sa
Representatives : Transphère Consult SA, CADatWORK, BIMLY, SRG Scherler SA, Philippe Tempere Conseil, Thomas Jundt, BIM Insight, Energestion, A3e / MAB, Sorane, ARCH AC, Ignis salutem SA, BCS, Alterego Concept, HKD Géomatique, MAB