Housing on the Rocks
« Au pied du Salève, Housing on the rocks dialogue avec la montagne : ses pignons minéraux réinterprètent les strates de la roche, comme si le bâti était une émergence du paysage lui-même. »
Programme : construction de logements et bureaux
Clients : GCD Holding SA
Dates : 2022 -
Statut : en cours
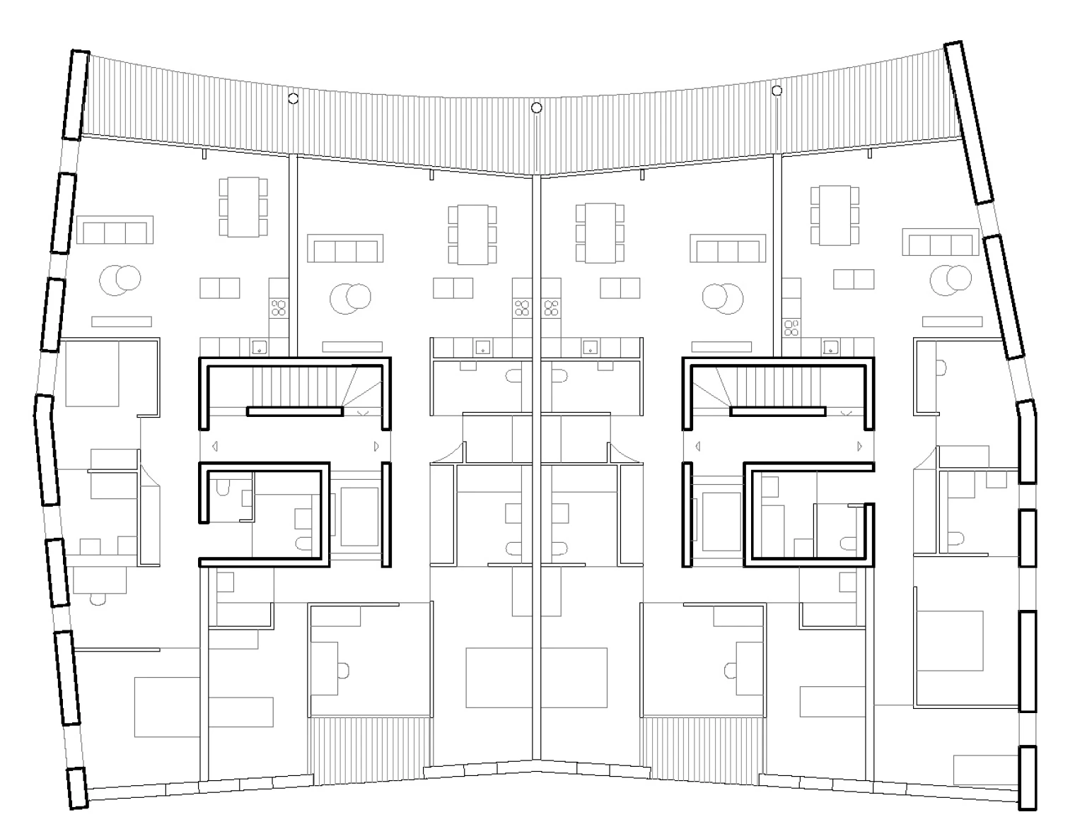
Situé à la lisière du village de Veyrier, au pied du Salève et en surplomb du bassin genevois, le projet s’inscrit dans un territoire où paysage, patrimoine et habitat se rencontrent. À la frontière entre noyau historique et extensions plus récentes, il assume une position charnière et propose une densification mesurée, fondée sur la densification par le vide. La maison familiale existante, siège historique de l’entreprise familiale, est conservée, restaurée et clarifiée dans sa volumétrie d’origine ; elle devient le pivot d’une composition qui réintroduit une cour centrale structurante. Autour d’elle, deux nouveaux volumes inspirés du corps de ferme viennent recomposer un hameau contemporain, respectueux des échelles et des silhouettes villageoises.
Le projet puise dans les codes de l’architecture rurale pour en proposer une lecture contemporaine : toitures à deux pans, pignons affirmés, ouvertures libres dictées par l’usage, coursives en bois… Côté cour, la minéralité ordonnée prolonge l’histoire rurale du lieu ; côté jardin, les formes s’assouplissent et s’ouvrent vers le verger et le grand paysage, préservant le bosquet existant et son séquoia centenaire. Entre mémoire et transformation, l’intervention tisse un dialogue subtil entre bâti et végétal, ancien et nouveau, et esquisse une vision de l’habitat collectif comme une « grande maison partagée », ancrée dans son territoire.
Programme : construction de logements et bureaux
Clients : GCD Holding SA
Dates : 2022 -
Statut : en cours
Crédit images : FdMP